
LP Ambroise Croizat
40220 Tarnos
Retour
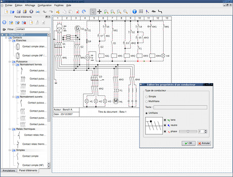
QElectrotech :
Documentation technique
Descriptif
Logiciel de schématisation

Liste des Activités
La structure de cette page a été modifiée dimanche 31 août 2025 à 14:40:35